金茂长沙国际社区样板间
元禾大千根据时间的变化下不同的空间需求,打破家的单一形态模式,回应新青年的乐趣与生活。
- 项目名称:金茂长沙国际社区样板间
- 项目地点:湖南省 长沙市长沙
- 开发商:中国金茂
- 设计参考价:¥2500/㎡
- 销售参考价:¥11300/㎡
- 项目类型:住宅
- 形态:示范区
- 市场定位:改善系
- 建成时间:2022年
- 风格:现代
- 主力户型:小高层(7-11层) 平层 90-120㎡ 3室 2厅 2卫
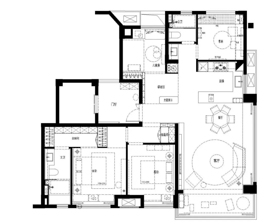
- 设计面积:112㎡
- 容积率:2
- 装修类别:毛坯
- 发布日期:2022-07-11
- 最近更新:2022-07-12 16:55




























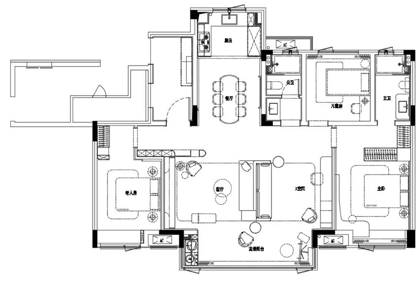
*此房间由空中花园改造



















金盘网APP
金盘网公众号
金盘网小程序





