佳兆业珑樾壹号别墅
佳兆业珑樾壹号别墅样板间位于成都龙泉驿区,临近3万亩青龙湖湿地公园,丰富的自然景观与生态环境激发设计灵感。
- 项目名称:佳兆业珑樾壹号别墅
- 项目地点:四川省 成都市成都
- 开发商:佳兆业
- 设计参考价:¥4000/㎡
- 销售参考价:¥19000/㎡
- 项目类型:别墅
- 形态:示范区
- 市场定位:高端系
- 建成时间:2021年
- 风格:现代
- 主力户型:叠拼 180-210㎡ 3室 2厅 2卫
- 设计面积:220㎡
- 容积率:1.5
- 装修类别:毛坯
- 发布日期:2021-11-26
- 最近更新:2021-11-26 12:05

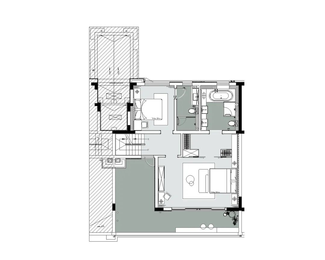
夏去秋来 日日见新 季节的美好 是自然给予我们的馈赠 / 日子到了秋天 目之所及从“绿树集阴浓” 切换成了“深红出浅黄” 与春夏的清凉单薄相比 秋季的厚重足以支撑起 新的情绪与思觉感悟 自然和人生的果实 也即将在秋季 慢慢成熟、结果 一直以来,说到“自然”,好像它是荒野,是远山丛林,是遥远的,难以触及的世外之境。 实际上当我们打开全部感官,沉浸于现实的各种声色和触感时,就已经与自然产生了某种联结。 这种联结回归到住宅,由艺术笔触生出曼妙之花。 佳兆业珑樾壹号别墅样板间位于成都龙泉驿区,临近3万亩青龙湖湿地公园,丰富的自然景观与生态环境激发设计灵感。 CHAPTER 01 最深层的城市肌理 从地理位置和气候来看,成都有着亲近自然的优势;而在寻求发展的城市被裹挟进内卷语境的当下,成都闲慢且乐活的内核,仿若一个自成一体的世界 陈设设计触碰最深层的城市肌理 将成都的静谧闲适引入室内 经过材质与色彩的交融 形成自然平和的居住氛围 让居者在浮躁不安的现代生活里 找到精神共鸣 CHAPTER 02 天然本色 人类热爱自然是天性,空间以琥珀色系还原秋色,散发朴拙无华的季节之美 手工捏制的陶土雕塑装点目之所及 粗狂的手工肌理不需多余处理 质朴的纹路和肌理即是精粹 藤编座椅、悬挂的素草与斑驳的花器 一切都保持素雅的天然痕迹 平静如水的围造让人身心放松 空间洋溢着舒心无压的本色 不同浓度的琥珀色 点缀出多变秋意 现代画家肖水晖的作品 用艺术手法体现旧时记忆 (一层平面图) CHAPTER 03 墨绿的夜 步入二层,像是拨开了朝阳云雾,走进自然深处。 墨绿深邃似夜 取意于天府之国的山韵 设计师纳山色入室 不止是外在的装饰 更是对自然、生命、生活的追寻 加以糅合几何抽象艺术 非规则的写意手法 赋予现代居室宁静淡然的新生力量 (二层平面图) CHAPTER 04 生活收藏家 放慢脚步,感受多元,收藏热爱 成都除了自然闲适的居住氛围外,「潮流」也是不可忽视的城市特征。2020年 Vogue Business in China 释出的《新时尚之都指数报告》中提到——成都以最强综合实力摘得「新时尚之都」的桂冠。 设计师洞察当代菁英居者的思维,在保持风格统一的背景下,融入潮流街球元素。这种文化的对撞,恰好演映出城市海纳百川的属性,也激发着居者对新事物的探索。































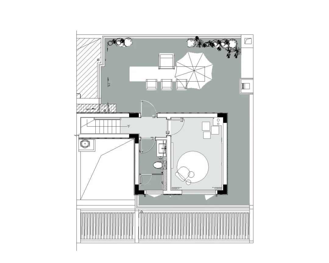
(三层平面图) 项目全名:佳兆业珑樾壹号别墅样板间 (部分图片来自于网络)
项目地址:成都
软装设计:元禾大千
硬装设计:ENJOY设计
设计时间:2021.02
完工时间:2021.07
空间面积:220㎡
甲方单位:佳兆业地产西南 集团
摄影团队:失窃的未来
金盘网APP
金盘网公众号
金盘网小程序





