东莞奥园翡翠澜湾营销中心
奥园翡翠澜湾营销中心位于广东省东莞市,元禾大千软装设计团队以追寻未来之光为出发点,以光叙事,把握时代脉搏,探寻当地肌理,带着对城市的远见,构筑贴合当下人美好的归心生活方式。
- 项目名称:东莞奥园翡翠澜湾营销中心
- 项目地点:广东省 东莞市万江街道共联社区金丰...
- 开发商:奥园集团
- 设计参考价:¥2300/㎡
- 销售参考价:¥35000/㎡
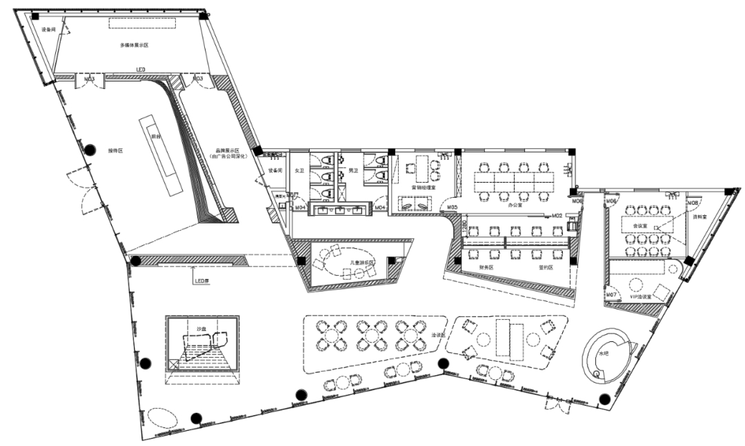
- 项目类型:住宅
- 形态:示范区
- 市场定位:刚改系
- 设计年份:2021
- 建成时间:2021年
- 风格:现代
- 设计面积:580㎡
- 容积率:3.51
- 发布日期:2021-09-17
- 最近更新:2021-09-24 12:00
奥园翡翠澜湾营销中心位于广东省东莞市,元禾大千软装设计团队以追寻未来之光为出发点,以光叙事,把握时代脉搏,探寻当地肌理,带着对城市的远见,构筑贴合当下人美好的归心生活方式。










洽谈区的墙体像是被时间长河打磨过的崖壁,形成的轮廓构成岩崖洞穴的形态。原石肌理与现代材质手法的演绎,致敬传承,向往未来……















工程资料(含设计、工程、材料)
材料及其应用场景
瓷砖
瓷砖
瓷砖
瓷砖
石材/人造石
石材/人造石
石材/人造石
石材/人造石
漆
漆
漆
漆
洁具
洁具
洁具
洁具
金盘网APP
金盘网公众号
金盘网小程序





