融创咸宁梓山湖未来城平叠
项目名称|融创咸宁梓山湖未来城平叠 项目地址|中国咸宁 硬装设计|赛拉维 空间陈设|亦境空间设计 创意总监|陈晓熹 设计总监|徐颖 主创团队|EGD设计一组
- 项目名称:融创咸宁梓山湖未来城平叠
- 项目地点:湖北省 咸宁市 咸安区银湖大道梓山湖...
- 开发商:融创中国,融创中国华中区域
- 设计参考价:¥3000/㎡
- 销售参考价:¥9500/㎡
- 项目类型:综合楼盘
- 形态:示范区
- 市场定位:康养及其他
- 建成时间:2020年
- 风格:其他
- 主力户型:叠拼 70-90㎡ 3室 2厅 2卫
- 设计面积:164㎡
- 容积率:0.5
- 发布日期:2021-07-15
- 最近更新:2021-07-15 16:40
85㎡户型

以家为始,改变世界;融入环境,拥抱自然。春芜自然的初春萌绿与居家环境融为一体,富有希望的早春色调使我们宛如置身世外桃源。

•
01
LIVING ROOM
客厅

-
清晨第一缕阳光透过纱帘
散落在枝丫蔓延的地毯上
春日的气息渗透进来
家人闲坐
沏上一壶早春的绿茶
手捧着冒出一缕白色热气的清香
谈笑和着微风轻拂
-

•
02
DINING ROOM
餐厅

-
人间四月天
万物复苏
去梓山湖采一束春色放进花瓶
起兴提笔写一卷书法
-

-
山间有鸟鸣
雀跃入耳
仿佛要去追寻诗和远方
食器承载着一家人的烟火
-


•
03
KICHEN
厨房

-
烟火飘来的地方正是这里
发酵的面团在爸爸手中胖乎乎的
像是冬季下雪后揉搓的雪球
但在家里却变得有了温度
-

•
04
BEDROOM
主卧

-
午后趁着阳光
坐在飘台上下一盘棋
喝一盏茶
恬然自得
-


•
05
BEDROOM
次卧

-
我很喜欢渡边和子说过的一句话
日日是好日
世间美好
相信的人能够得到
-

-
就好比
我心中的生活是彩色的
我描绘出来的画
也是明媚的
-

•
06
BEDROOM
书房

-
妈妈喜欢捣鼓她的芳香
取材于春天
存于四季
弥漫于整屋
-

-
我觉得
虚度每一天是十分悲哀的事
在年龄增长的同时让自己掌握一些东西
应以想把人生的体验作为今后的营养物质的心情好好生活
-

79㎡户型

寻一片静谧的家园,以湖为居,深处温润的木色之中,与自然连接。去拥有超脱凡俗和与世无争的生活态度,心境则静。

•
01
LIVING ROOM
客厅

-
出行归来
乘一叶扁舟
泛起涟漪如画
顺流而下便是家
-


-
鸟鸣相迎
迎面飘来阵阵月色琥珀的味道
是楼下邻居赠送的
因书法喜交
-

•
02
DINING ROOM
餐厅
-
中国人讲究团圆
一家人在一起
吃的是一片浓浓的幸福感
还有对劳作人的感恩
-

•
03
KICHEN
厨房

-
小南瓜是去年秋天收获的
待变干之后研磨成粉
可以做成小点心下午食用
-

•
04
BEDROOM
主卧


-
今年疫情很多地方都不能去
刚好有时间把以前去过的地方做成手账
觉得自由的生活何足珍贵
所以有时间就多出去走走吧
-

•
05
BEDROOM
儿童房


-
很多女孩子都曾幻想自己是一个公主
我家丫头也是
自从去年带她去过迪士尼
回来就想把自己的房间重新布置一番
-

-
墙面给她装了可以画画的卷轴
可以释放自己的想象力
希望在这个祥和的家里
能给她一个快乐的童年
-

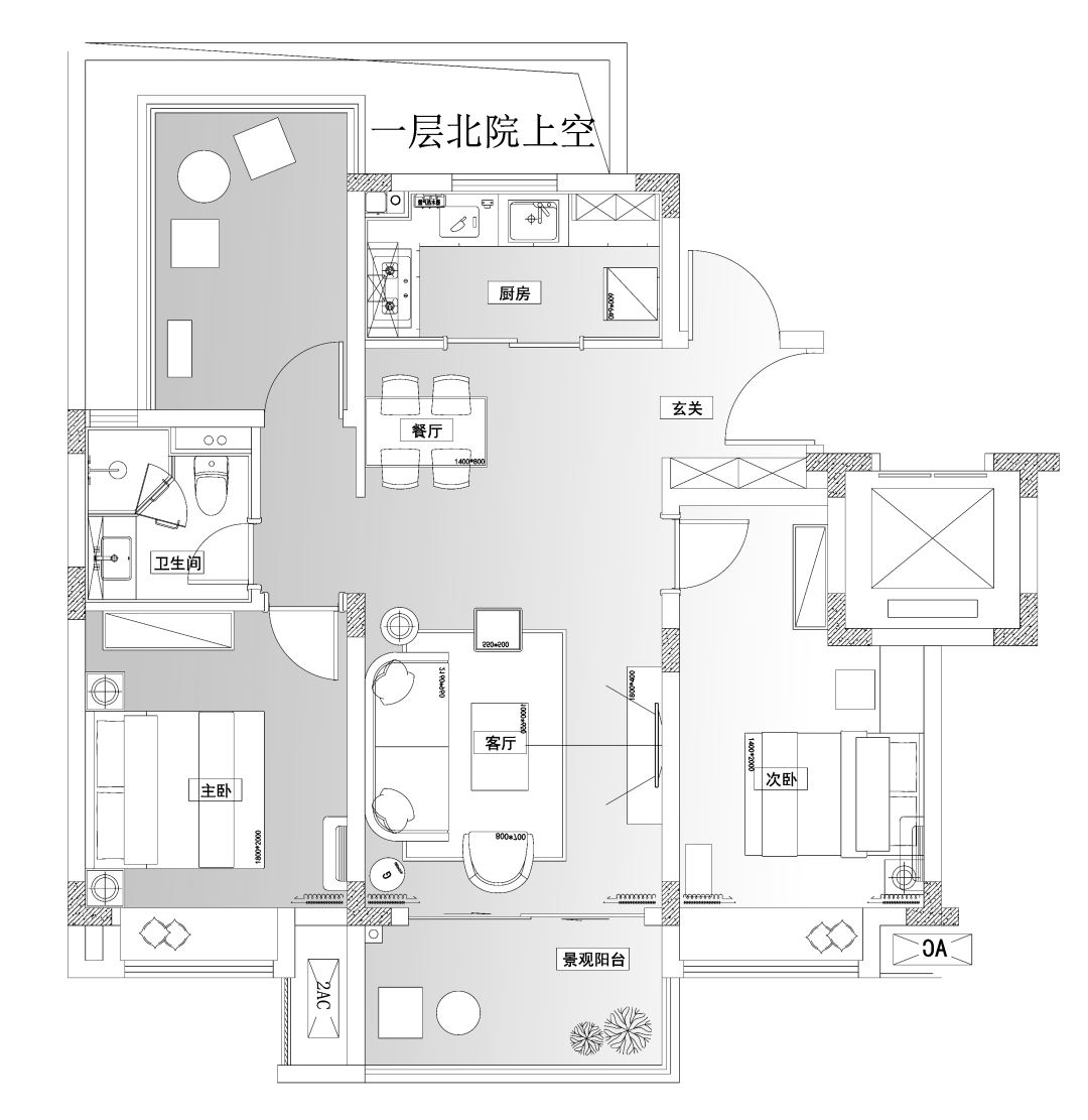
户型平面图
-

85㎡户型

79㎡户型
金盘网APP
金盘网公众号
金盘网小程序




