极简主义下的东方美学
中海紫御江山(展示区)
Oriental Aesthetics of Minimalism
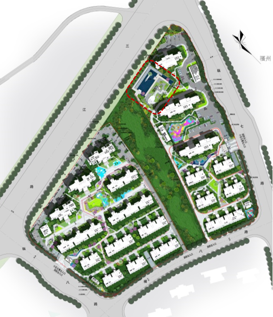
中海·紫御江山项目位于福州市仓山区三江口南站片区,包含两个地块,其中B1地块占地面积29795㎡,B2地块占地面积26516㎡,总建筑面积140778㎡,容积率约2.5,建筑密度20.0%,绿地率:35.0%。项目示范区占地7700㎡,建筑面积1000㎡,从整体规划及空间上考虑,选址于地块北部偏东位置,临近主要道路及城市绿地,昭示性及环境品质均好。
▲示范区位置示意
▲示范区总平面图
福州素有“海滨邹鲁”的美誉,三坊七巷、平潭海坛、鼓山、乌塔等美名远扬,是中国古老文明的发祥地之一,历史文化底蕴深厚。本案所在的三江口地区,三江交汇,群山环绕,具有十分优越的天然山水格局。经过大量的研究、推敲与对比,将本案的造型风格确定为“东方典雅风格”。景观设计则以“山—水—榕—园”为主题,简约而纯粹的现代造景理念搭配深邃而含蓄的东方美学意境共同造就了景观的精髓,虚实相间的空间渗透手法将场地的层次丰富开来,多重院落的起承转合将建筑与景观互相交融,以达到中国传统空间“格物致知”的美学追求。整个示范区既融合了福州的地域文化,又彰显了现代、典雅、简约的艺术气息。本案以下沉庭院空间及人行流线为重点,合理利用场地高差条件,多重院落起承转合,营造出步移景异的纯水院空间,且结合现代、简约、典雅的设计手法,使建筑与景观空间相互交融,浑然一体。针对观赏流线进入下沉庭院的位置、空间感受及流线合理性进行了多方案探索及讨论。




示范区的空间设计由停车空间、前庭、主院、售楼处、后院空间、样板房六部分组成,以人行观赏流线完整串联每个空间。

前庭:
示范区主入口强调横向“线”的主导形象,利用斜切的母题语汇,具有强烈的空间引导性与立面昭示性,沿街立面完整、简洁,打造均衡、美好的构图。主入口半封闭空间的设计将建筑、室内、景观一体设计,外景内用,内景外享,浑然一体。


主院:
参观者出电梯后沿着景观外廊180°欣赏庭院空间及主体建筑立面。




后院:
主体建筑沉在地平以下,第五立面在此设计中显得尤为重要,需要规划、建筑、景观协同工作,以保证整体设计浑然一体。轻盈通透的外部立面、富有变化的内院空间,折线环绕的观赏路线一道营造生动、舒适的居家户外生活环境。


▲第五立面阳光空间

建筑顶部,以深远、飘逸的板状形体点题,展现中式建筑大气、强调“线”的特色形象。整个示范区的设计建筑景观室内,通过无数次思维碰撞,头脑风暴,中国古代建筑室内景观统一设计的理念,各专业互相成就,彼此衬托,互为底景对景,从入口空间大门到景观长廊,再到主体建筑立面设计,都演绎和诠释了非对称、斜切、倒U或L构图的设计手法,示范区建筑与景观母题浑然一体!



建筑立面在保留古典建筑典雅痕迹的基础上,辅以金属材料、玻璃幕墙、精美细致的刻缝等处理手法,展现匠人细节设计情怀。

精美细致的刻缝
石材划分以建筑主体幕墙体系为一级模数,准几何形造型,符合美好比例的石材为二级模数划分,展现出简约、富于公建化的建筑形象。

▲石材划分尺寸研究

▲现场细节展示
项目名称:中海·紫御江山
项目地址:福建省福州市仓山三江口
开发单位:福州中海地产有限公司
方案设计单位:深圳市易品集设计顾问有限公司
景观设计单位:SED新西林景观国际上海公司
方案设计主创:许大鹏、李正春、
DESPABILADERAS RUBEN DIOLATA、 张宇、李云鹏




EPG以打造精品建筑为发展目标,坚持专业化及品牌的发展策略,将建筑与时代和地点紧密相连,致力成为中国建筑设计行业的创新者和领先者。