江门华强国际公馆(大区)
项目位于江门市蓬江区滨江新区,毗邻中央商务区,周边有丰富的高规格配套资源,已有成熟的住区开发状况,如何在板块中更具竞争力是项目的着眼点之一。针对场地周边趋于同质化的现状,设计深挖更丰富的品质人居诉求,结合岭南的风土气质与开放的文化积累,引入江门作为...
服务范围:地产开发-住宅
销售参考价: 11800 元/平方米华南地区住宅
入围项目
- 项目名称:江门华强国际公馆(大区)
- 项目地点:广东省 江门市华强国际公馆
- 开发商:江门华强房地产开发有限公司
- 销售参考价:¥11800/㎡
- 项目类型:住宅
- 形态:大区
- 市场定位:刚改系
- 建成时间:2022年
- 风格:现代
- 主力户型:高层 平层 144-180㎡ 4室 2厅 2卫
- 占地面积:26862㎡
- 建筑面积: 73868㎡
- 容积率:2.75
- 绿化率:32.9%
- 装修类别:毛坯
- 发布日期:2024-06-27
- 最近更新:2024-06-27 12:18

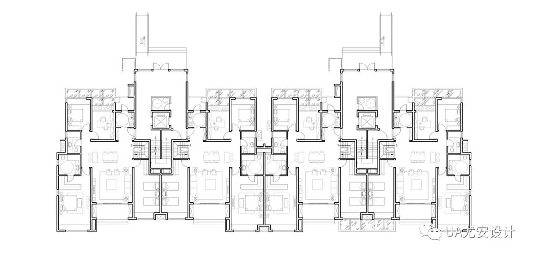
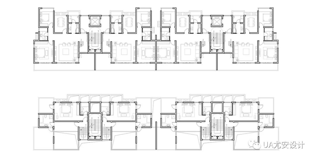
项目位于江门市蓬江区滨江新区,毗邻中央商务区,周边有丰富的高规格配套资源,已有成熟的住区开发状况,如何在板块中更具竞争力是项目的着眼点之一。针对场地周边趋于同质化的现状,设计深挖更丰富的品质人居诉求,结合岭南的风土气质与开放的文化积累,引入江门作为“中国第一侨乡”的开阔性文化视野,在竞争激烈的地块中因地制宜打造差异化产品,以更具度假气质的人居产品与造型语汇,为居住者提供更丰富和优越的居住感受。 ▲周边住区较多 产品趋于同质化 ▲项目实景图©纯点摄影 项目地块长约200m,宽约120m,用地条件较为紧凑。项目在高容积的目标要求下,以产品力为先导进行总体规划布局,进一步内挖用地的潜力可能,提升地块的人居价值。 ▲项目用地条件 产品布局空间取优 传统的高层产品可选择的排布方式十分有限,极为影响后排楼栋居住者的视线空间。因此规划采用了高低配的组合方案,以低密洋房提升住区整体的品质感,高层居于北,洋房位于南,彼此间的较大高差实现了前后建筑观景视线的最优解。 ▲高低配组合优化住区品质感 在考虑低层洋房排列方式时,设计考虑到传统的中轴对称多进式在气质上与岭南侨乡的国际化定位产生违和,并且在集约地块下,轴线中的公区会对洋房内部的静谧居住体验产生影响,因此设置了侧面集中的布局,在外部形成开放灵动的入口空间,在内部形成一片漂移蜿蜒的L型景观带。 ▲侧面集中布局提升整体体验 ▲主要户型分布 ▲大区内良好的视野布局©纯点摄影 动线空间蜿蜒漂浮 产品布局自然构成了L型的中央景观带,从主要人行入口蜿蜒而入的景观步道空间较为狭小,漂浮的步行连廊提供了更丰富的空间视觉;高层底部的架空层在与景观近距离交织的同时,也削减了高度所带来的压迫感;大区内宽阔的水景为内部带来了更多南洋风情与海天倒映的开阔心境。 ▲景观步道布局 ▲步行观景的花园式大区©纯点摄影 设计以自由流畅而具有律动的折线语言描绘勾勒,且丰富细化设计形态,希望传达场景的温度和生活气质。在材料的选择组织上,体现纯净、深厚、简练且克制的态度和情怀。 ▲造型理念手绘图 结构构建横向飘板 为呼应岭南日照强烈的自然条件与灵动的南洋文化,建筑以结构的手法设置了凸出的飘板造型,兼顾遮阳功能与线条美学,通过米白色真石漆与深灰色材料的对比强调了飘板的灵动与通透,同时实现了落地的还原度与成本控制。 ▲两种颜色的选材形成波浪感 ▲高层立面飘板节点设置 ▲功能与实用并存的流畅立面©纯点摄影 第五立面隐藏手法 考虑到高层与洋房产品之间的空间关系所产生的视觉效果,设计不仅考虑了常规立面的刻画,更在洋房的“第五立面”——屋顶部分中采用了飘板与格栅结合的手法,对屋顶设备进行隐藏,令洋房在视觉上更具一体性。 ▲洋房“第五立面”节点设置 ▲兼具美感与实用的洋房造型©纯点摄影 设计考虑到在紧凑用地下为使用者提供更具品质感的生活感受,在产品中提供了更丰富多样的休憩空间,洋房产品设置了层层多样的退台空间,保证逐层均有宽敞的自然交融空间,实现了城市生活也能拥有的“度假式”居住体验。 ▲层层有自然天地的人居构想©纯点摄影 ▲155产品平面图 ▲160产品平面图



























工程资料(含设计、工程、材料)
金盘网APP
金盘网公众号
金盘网小程序


