杭州·金隅会潮悦府样板房
家是生命的延续,只有对场所的研究与挖掘才能创作出体现文化底蕴和场所个性的作品。用设计传达美好生活的意图,支持起我们内心的精神空间。人生的一切变化,唯一不变的是家,一个梦想启航的地方。
服务范围:地产开发-住宅
销售参考价: 46500 元/平方米华东地区大户型空间
入围项目
- 项目名称:杭州·金隅会潮悦府样板房
- 项目地点:浙江省 杭州市 上城区环站东路铁四院...
- 开发商:金隅集团
- 销售参考价:¥46500/㎡
- 项目类型:住宅
- 形态:示范区
- 市场定位:刚改系
- 建成时间:2022年
- 风格:现代
- 主力户型:高层 平层 144-180㎡ 4室 2厅 3卫
- 占地面积:52000㎡
- 建筑面积: 179000㎡
- 容积率:2.4
- 发布日期:2023-09-21
- 最近更新:2023-12-25 13:57
家的品位·优雅境界
my view on elegance

家,不仅是身体的休憩地,
是心灵的归宿,更是通往
世界的起点。
我们希望家是能够享受空间下的气质美学,贮存空间下的欢乐时光,同时又能庇护居住于当下空间的人,成为心灵疗愈之地。

样板间A客厅
空间设计是让无序变得有序,用丰富空间的视觉表现,增强家居环境层次感。客厅方正布局与家具的搭配,东西方韵味融汇于此,描摹出空间与艺术和谐、纯粹的共生之美。


融当代生活方式与艺术生活于同一空间,暖灰与深木色的色彩碰撞,隐去客厅的边界,沉静高雅的自然气质无限流露,简约奢华的灯具、精致的摆件营造出家的情境和氛围。


光影摇曳在开敞的厨房与餐厅,合围出家的温馨与浪漫,秩序的空间设计,所想既能所得。任凭世界烦扰嘈杂,也能在此秘境里寻求得到静怡雅致的生活体验。

样板间A餐厅(效果图)
餐厅是仪式之地,是拉近家人亲情关系的地方,VBD设计团队串联家庭生活的脉络,融合便捷性与视觉流畅感,餐厅、迷你吧台、酒柜在自然光与灯光映下,塑造现代家庭的品味。

样板间A主卧(效果图)

样板间A主卧
对于VBD而言,家是能让空间下的人感受到生活的美好,用艺术描绘,注入情怀,诠释空间独有的意义,于是家就有了生命力,人就有了牵挂与眷恋,这便是我们所秉持的「场所精神 GENIUS LOCI」。

样板间A次卧(效果图)
门外是家,门内是浩瀚宇宙。给于生活的基础框架,随时间慢慢推移便开始有了丰富精彩 。格栅书架和储物柜极大的增加了储物空间,同时层次感随之产生。

次卧流畅的线条与柔和的色调,让空间下的人更专注于学习当中,当椅坐在此,如青春剧般,总能打动人心。


空间中的生活美学应用,相互搭配的台灯、复古的翻页时钟、写字桌。

样板间A客厅
“家是通过改变空间的物质要素表现出的时空秩序,它直接铭刻和表达出居住者的意图。用隐秘的手法去改善家庭意识,通过艺术表现去渗透到生活中的每个层面。从而撑起人的精神空间”这就是VBD对家的思考。

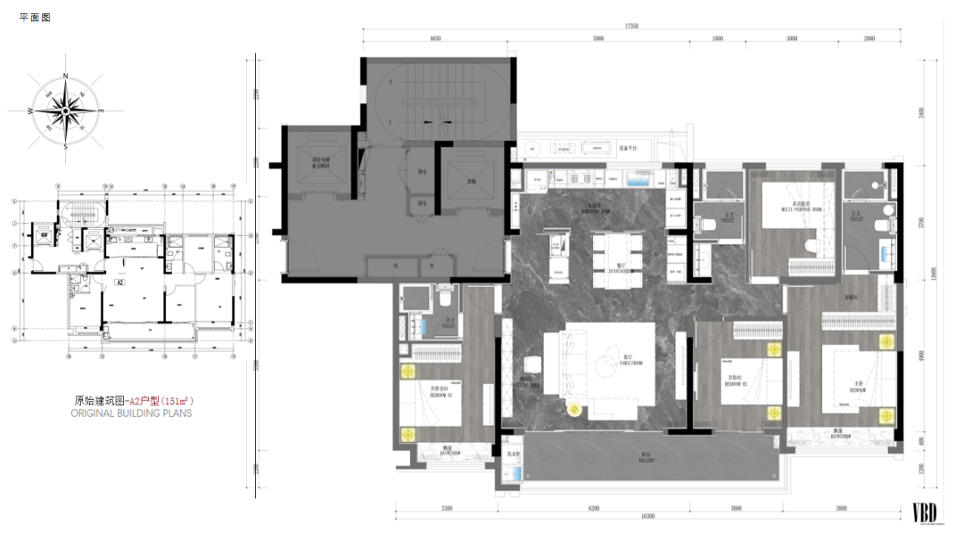
样板间A(151㎡)
项目名称 |金隅会潮悦府
项目地点 | 浙江 · 杭州
开 发 商 | 金隅悦潮(杭州)房地产开发有限公司
项目类别 |样板间
项目面积 | 151 ㎡
完成时间 | 2022年 5 月
设计单位 | VBD 中置华优设计集团
设计团队丨第一设计中心 第二设计中心
设计团队 | 童超 、袁剡建、高宇航
空间摄影 | 生辉
工程资料(含设计、工程、材料)
金盘网APP
金盘网公众号
金盘网小程序


