石家庄·三盛明瀚·璞悦长安
回应石家庄特殊位置的历史文脉,回应家之于人最原始的情感,让这里的居民沉浸于隐逸的生活状态,感受诗意居所的浪漫生活。
服务范围:地产开发-住宅
销售参考价: 14000 元/平方米西、北部地区预售楼盘
入围项目
- 项目名称:石家庄·三盛明瀚·璞悦长安
- 项目地点:河北省 石家庄市 长安区 河北省石家...
- 开发商:三盛集团
- 销售参考价:¥14000/㎡
- 项目类型:住宅
- 形态:示范区
- 市场定位:刚改系
- 建成时间:2021年
- 风格:现代
- 主力户型:小高层(7-11层) 平层 90-120㎡ 3室 2厅 2卫
- 占地面积:31975.73㎡
- 建筑面积: 102032.72㎡
- 容积率:3.19
- 绿化率:37%
- 发布日期:2023-05-01
- 最近更新:2023-12-22 15:32


以“只在此山中,云深不知处"的意趣为愿景
打造一个兼具地域、人文的归家之所。
设计缘起
“DESIGN ORIGIN”
——
回应石家庄特殊位置的历史文脉,回应家之于人最原始的情感,让这里的居民沉浸于隐逸的生活状态,感受诗意居所的浪漫生活。



见 山
“SEE THE MOUNTAIN”
——
回家,是一次归心之旅。本案提出“云山深处,诗意居所”的归心开始。
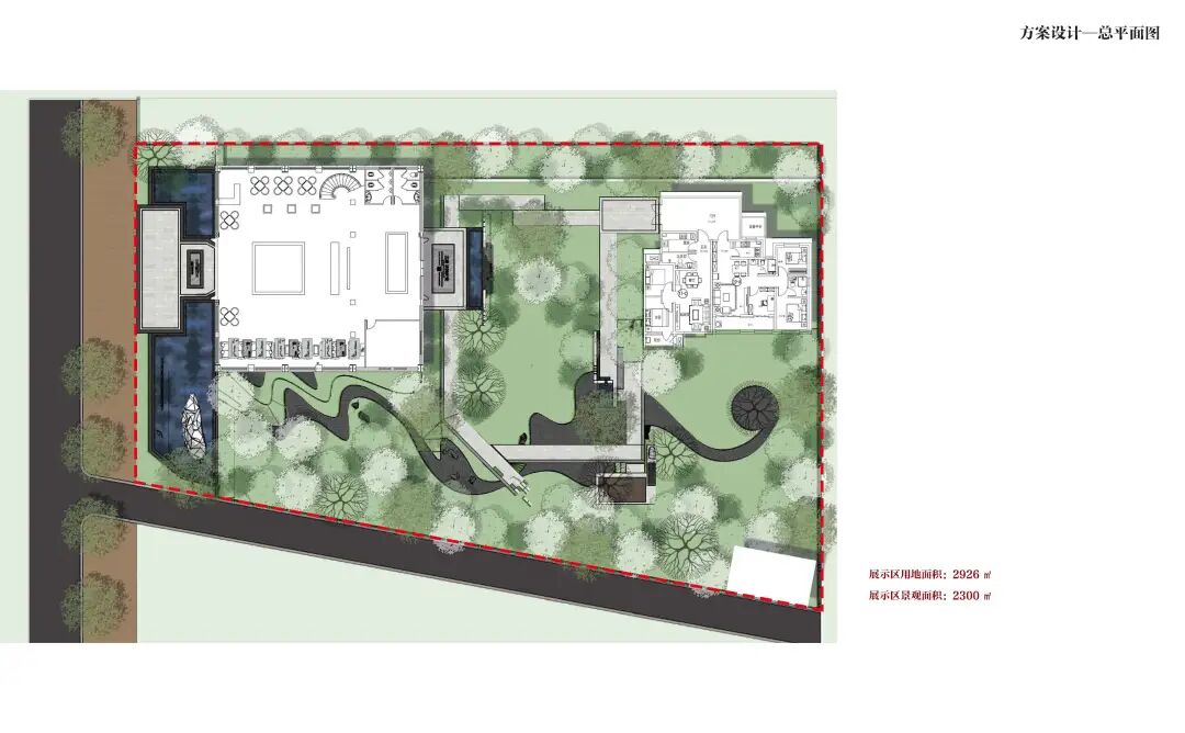
前广场为迎宾空间,建筑两侧的水景,烘托强调中心的售楼部建筑,打造具有仪式感,昭示感的形象入口和舒展大气的展示界面。



寻 音
“SOUND SEARCH”
——
从前场缓缓步入后场,恍若进入充满诗意的幽谷。
艺术雕塑与景墙带来光与影的角逐,行进其间,感受光影的变幻,寻找关于自然、记忆的线索,重温美好生活居所的旅途。


听泉
“Hear spring”
——
“未见其人,先闻其声”。步入中庭园区,汩汩的跌水,袅袅泛起的炊烟,宛若仙境在人间
有限的空间在这里有了无尽的山水之境,庭院呈现诗意的气质。如同一座隐于山林之内的居所,自然之意趣不经意间回归了生活。




归隐
"HOME RETREAT TO NATURE"
——
循着中庭的动线,来到后场,林中的居所若隐若现。
喧嚣都市,归隐山林,拥屋舍一间,这是简, 青翠相伴,读书品茗,可与世无争。






在饱含层次感的生活背景中,唯有人和生活才是永恒的主角。
我们以自然为基底,以艺术为手段,营造一座让人静下心来的诗意栖居。每天归家,看云山自然变幻,听泉水畅响,感受场景中浸润的情感,终于可以卸下一身的疲惫,走进这诗意的心之旅。






从整体来看,两室户型设计,整体布局合理,保证了室内的通透性、采光性。适合进行整体布局装修,避免了零散面积的浪费问题,可以做到使用面积合理利用。

工程资料(含设计、工程、材料)
金盘网APP
金盘网公众号
金盘网小程序



