- 项目名称:深圳幼儿园
- 项目地点:广东省 深圳市 罗湖区羅湖區清水河羅...
- 开发商:华润(深圳)地产发展有限公司
- 设计参考价:¥10/㎡
- 项目类型:其他
- 形态:示范区
- 建成时间:2021年
- 设计面积:5615㎡
- 容积率:2
- 发布日期:2022-04-24
- 最近更新:2022-04-24 15:04




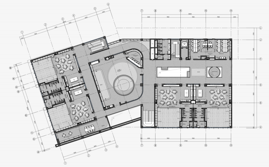
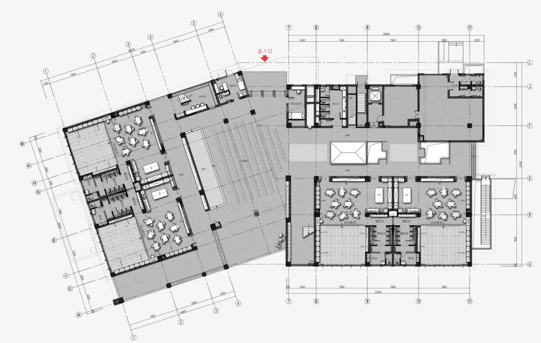
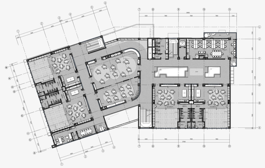
由矩陣縱橫MATRIX DESIGN聯合華潤(深圳)地產發展有限公司設計的深圳幼兒園,使建築與環境融為一體,引導孩子們在豐富的空間層級與自由的交通流線中,探索發現,愉快成長。 # 未被明確定義的公共活動空間 校園是孩子第一次作為個體加入集體生活的主要場所,他們對場所的感知和體驗會影響到自我的成長軌跡。 △意向圖 設計團隊走訪並瞭解到100多個孩童的思想認知和空間需求,在與他們近距離的交流和相處中,我們獲得了第一手資料,相比於五顏六色的建築空間,他們更青睞於自然的物料和氛圍,天性熱愛冒險和挑戰的他們,對草木、光影、風雨、沙土等自然元素有著與生俱來的親切感。 深圳幼兒園,依自然山體而立,背山面城。MATRIX重在關注如何融園區於生態系統之中,從而實現建築與自然的互通互動,在最大程度上引導孩童對空間和環境的感知。變化豐富的環境中蘊育著創造力的園舍,運動場所縈繞其中,自由交織的動線,既顯整體,又保有獨立性;色彩跳躍其間,激發生命活力,存創造力於野趣之間。 “建築應該是自然的,要成為自然的一部分。”——弗蘭克·勞埃德·賴特(Frank Lioyd Wrignt) 依山而建的深圳幼兒園,山成為園區設計時的重要參考點,遊樂場所,運動跑道等室外設施,使用大量的曲線形態,恰如其分地與傾斜的山體結構搭建成一個完整的生態系統,在2-6歲孩童的認知世界裏,創造一處未被明確定義的公共活動空間,可供孩童自由地觀察和探索。 對孩子來說,他們對於一切新奇事物都有著癡迷和興趣,而大多數時候,他們也會持續觀察周圍環境的所有細節。 #收放自如、起承轉合的序列空間 △軸側圖 主空間的三層挑空中庭,激活校園邊界與活力,豐富的空間層次製造著諸多可供探索的小天地;半開放的處理,意味著自然可以流動並進駐到室內,光影的流動營造著有禮、有序的空間氛圍,完成兩者之間的自由迴圈。 全域圓弧形倒角設計在最大程度上確保安全隱患的基礎上,將童年最珍貴的自由呈現給孩子,這是設計載入其中的內核力。 首層架空層,作為孩子們日常追逐嬉戲的重要公共場所,設計通過建築圓拱元素銜接外部自然空間與內部生活空間的過渡地帶,將原本一眼望盡的單調直線空間,變成收放自如、起承轉合的序列空間,提升孩子們的場所參與度和探索想像力。 △軸側圖 一體化的結構佈局,活動室即可在一室之內完成多種模式切換,從而做到最大化地利用空間。設計在牆壁視平線上隨機開設的弧形拱門,粗糙的結構轉變為更加高尚的形式,包容著旺盛的好奇心;天花使用降噪環保原材料,在這個靈活的環境佈局裏嵌入著可持續性的發展理念。 △軸側圖 空間幾何形態所尋求的空間效率和流動性之間的平衡,以彈性的教室拉門來調節不同的開放程度,引導空間更自由地使用和流通。無需刻意製造靈活社交的場所,自由銜接的互動空間便是最好的活動場域,鼓勵著孩子們大膽去嘗試新內容。 自由開放的空間裡,陽光成為孩子的自然老師。設計以光影的流動來展示出它不同的形態,或明或暗,有意無意間創造著多元的趣味需求,從而推動自然和建築聯動為一體。 #獨特視角感知空間 室內外的對流,從左至右,由下至上,設計充分考慮到孩子在空間內的可視域和體驗感,不自覺中附近的植被和園景映入眼簾,為原本建築的佈局介入全新天地。 在孩子成長的初期階段,真正能夠引導孩子對空間作出反應的內容才是衡量空間價值的重要標準。活動空間再造空間,順序與層級依次鋪陳開來,大面積的超白透明夾膠安全玻璃創造出純淨,流動的空間環境,賦予他們“野”孩子的身份。 △ 滑動查看所有圖紙 項目名稱| 深圳幼兒園 委託方| 深圳市教育局 代建方| 華潤(深圳)地產發展有限公司 項目地址| 羅湖區清水河羅湖區二線公路以北,金湖路以南(華潤·銀湖藍山) 硬裝設計| 矩陣教育 項目攝影| 釋象萬合 室內面積| 5615㎡ 主要材料| 無機塗料、穿孔環保吸音板、木紋防火板、抗倍特板 設計時間| 2018年11月 完成時間| 2021年12月


























工程资料(含设计、工程、材料)
金盘网APP
金盘网公众号
金盘网小程序








